 |
 |
 |
 |
 |
 |
 |
 |
 |
 |
 |
 |
 |
 |
 |
 |
 |
 |
 |
 |
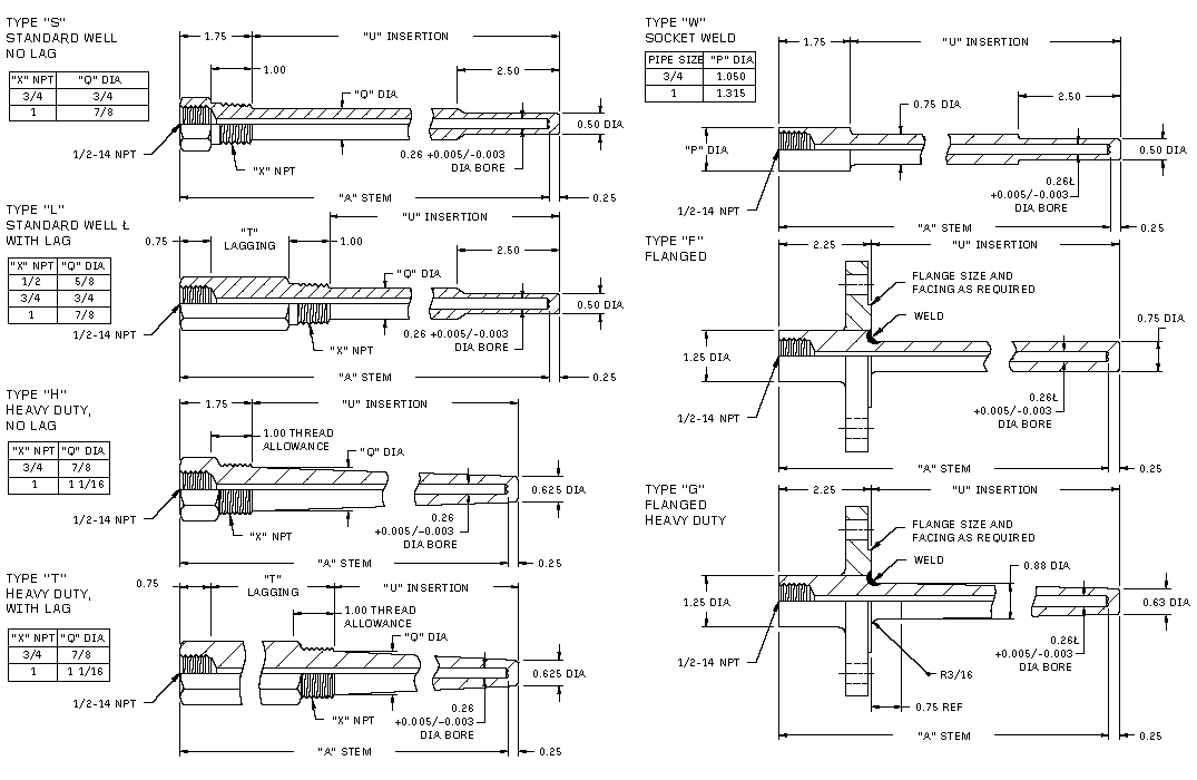
SX
LX
HX
TX
WP
FM
GM
|
 |
TYPE AND DESIGNATOR FROM TABLES
Standard threaded well; no lag extension
Standard threaded well; with lag extension
Heavy Duty no lag
Heavy Duty with lag
Socket Weld
Flanged
Flanged Heavy Duty
|
 |
| DESIGNATORS |
| X |
PROCESS THREAD |
 |
| 1 |
1/2" NPT (TYPE L ONLY, T = 0.5" MIN.)
|
|
2 |
3/4" NPT |
|
|
| 3 |
1" NPT |
|
|
 |
| P |
PIPE SIZE |
M |
FLANGE MATERIAL |
 |
|
2 |
3/4" |
(SEE THERMOWELL MATERIAL)
|
|
3 |
1" |
|
|
 |
 |
|
 |
 |
 |
STEM (A) LENGTH OF THERMOWELL BORE IN INCHES |
 |
 |
|
 |
 |
 |
INSERTION (U) LENGTH IN INCHES |
 |
 |
|
 |
 |
 |
LAG (T) LENGTH IN INCHES |
 |
 |
|
 |
 |
 |
THERMOWELL MATERIAL |
 |
|
A
B
C
D
Z
|
Carbon Steel C1018
SS 304
SS 316
SS 316L
Chrome/Moly (F22)
|
E
F
G
H
|
Hastelloy C
Inconel 600
SS 446
Mondel
|
J
K
L
M
|
Brass
Hastelloy B
Titanium
321 SS
|
N
P
Q
R
|
347SS
317SS
2205SS
321 HSS
|
|
 |
 |
 |
 |
 |
FLANGE FOR TYPE F OR G (face type and rating in Lbs., ie: R300) |
 |
R
RTJ
F |
Raised Face (150Lbs., 300Lbs., 600Lbs.
Ring Type Joint 900Lbs., 1500Lbs.)
Flat Face |
 |
|
 |
 |
 |
FLANGE SIZE FOR TYPE F OR G: 1", 1.5", 2", 2.5", 3", 4" |
 |
 |
 |
 |
 |
 |
 |
 |
 |
 |